Key Features
- Three Bedroom Detached Home
- Bright & Spacious Accommodation
- Three Reception Rooms
- Modern Kitchen & Utility Room
- Garage & Off Road Parking
- Two Bathrooms
- No Onward Chain
Full Property Description
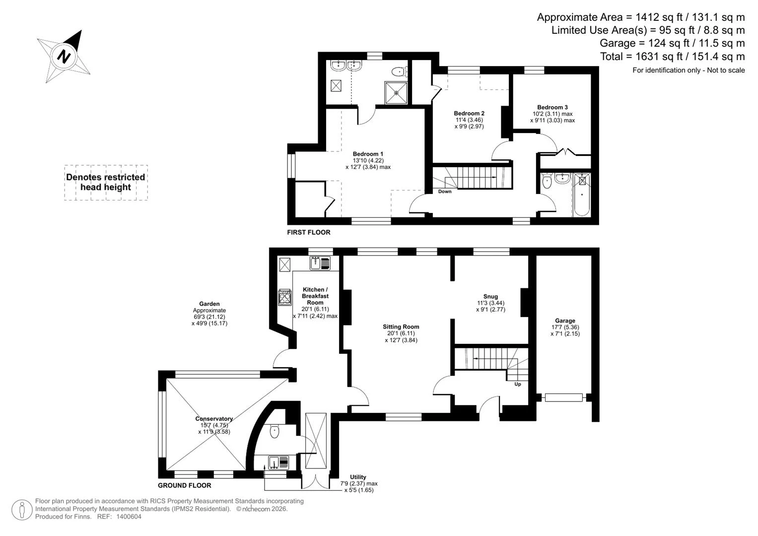
A unique, architect-designed detached three bedroom home, located on the highly sought-after Puckle Lane in the desirable South Canterbury area. Ideally positioned close to excellent schools, the A2 and the city centre, the property is offered for sale with no onward chain.
The accommodation is light and airy throughout. The welcoming entrance hall offers ample under-stairs storage and leads through to a spacious double-aspect sitting room featuring an attractive gas fire. This leads into a cosy snug with a large picture window overlooking the garden. The modern kitchen is beautifully designed with a range of white gloss units, quality built-in Miele and Siemens appliances, underfloor heating, and a striking vaulted ceiling with Velux windows that flood the space with natural light. From the kitchen, a door leads to the utility room and downstairs cloakroom, while French doors open directly onto the garden. A timber conservatory, although in need of some repair, provides a lovely space from which to enjoy views over the garden.
Upstairs, the landing leads to three well-proportioned bedrooms and the family bathroom. The main bedroom benefits from built-in storage and a spacious en-suite shower room.
Outside, the property is approached via a driveway which is shared with one neighbouring house, providing parking for two vehicles in addition to the garage, which has an electric roller door. The garden is arranged into three areas, including an excellent entertaining space with porcelain tiling and a covered seating area, ideal for al-fresco dining. A secluded side garden is mainly laid to lawn with established shrubs and flower borders, while a further rear garden area is also predominantly lawned with well-stocked borders.