Full Property Description
The Rookery is an extremely rare opportunity to purchase a substantial detached five bedroom farmhouse, complete with a plot of land to the left-hand side with full planning permission granted for the erection of a new four-bedroom detached home, plus an additional 9.3 acres of agricultural land to the rear.
Set along a quiet country lane and surrounded by beautiful open countryside and farmland, this unique offering provides exceptional potential for multi-generational living, those looking to build their own home, investment, or those seeking a rural lifestyle with extensive grounds.
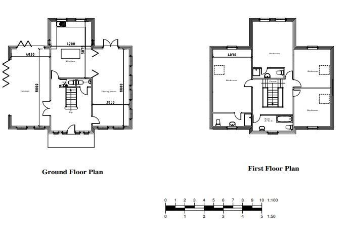
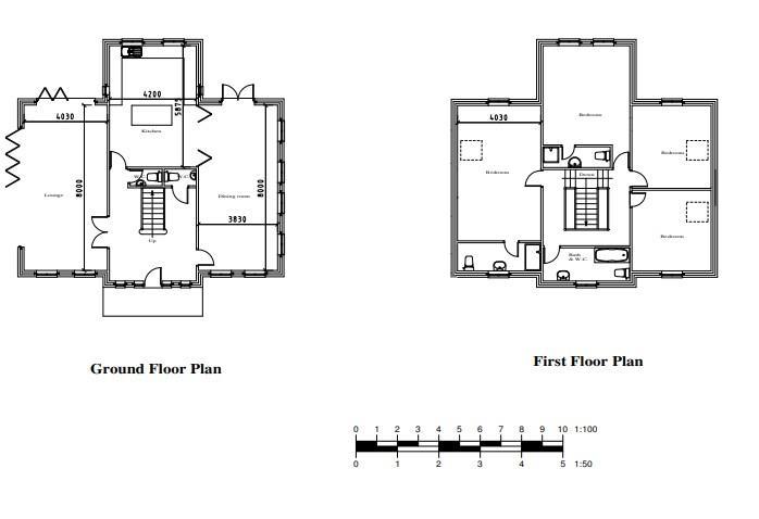
The Rookery is a charming and characterful farmhouse offering spacious and versatile accommodation, with ample scope to modernise and create a home tailored to individual tastes while retaining its rustic appeal. With far-reaching countryside views and generous internal spaces, the property has all the potential to become a truly stunning family home.
The inclusion of the adjoining plot - with full planning permission already granted for a new-build four-bedroom detached home adds significant value and opportunity. Whether developed for family use or future investment, this is a noteworthy asset rarely found alongside an established farmhouse.
The property also includes 9.3 acres of agricultural land to the rear, which forms part of the same title and lies directly behind the farmhouse.
Key Features
Staple is a delightful rural village with a strong sense of community. Its historic Saxon church, active village hall with events such as the ever-popular Staple Country Fayre and The Black Pig pub & restaurant all contribute to its welcoming charm. The surrounding countryside offers miles of walking routes and unspoilt scenery.
Nearby larger villages, including Ash and Wingham, provide a range of amenities such as a general store, doctor and dentist surgeries, pharmacy, and newsagents. Well-regarded primary schools can be found in Wingham, Goodnestone, and Ash, while both Sandwich and Canterbury offer excellent Grammar and private secondary schooling options.
Opportunities of this calibre in the village of Staple are exceptionally rare - making The Rookery, with its additional building plot and extensive land, a truly remarkable and exciting prospect.
Full details of the planning can be found on the Dover Council planning portal under reference DOV/21/01714 (S73) or by searching the post code: CT3 1JU
Agent’s Note: An overage is applied to the agricultural land to the rear for 25 years for 25% of the uplift in value if the land were ever to be residentially or commercially developed.