Residential Development
£325,000 Price Guide
Staple Farm, Durlock Road, Staple
A Rural Development Opportunity with Planning Consent for the conversion of the current barn into 4 Dwellings with impressive countryside views.
Full Property Description
A Rural Development Opportunity with Planning Consent for the conversion of the current barn into 4 Dwellings with impressive countryside views.
The site is located on Durlock Road in Staple, a semi-rural position with views over open countryside. The property lies approximately 3.5 miles from Sandwich and is well placed for access to Dover (10 miles) and Canterbury (7.5 miles).
The A257 is accessible at Ash (1.5 miles), providing a direct link to the A2 and the national motorway network. Thanet Parkway railway station offers high-speed services to London St Pancras in approximately 75 minutes. The surrounding area is popular with tourists and golfers, with nearby attractions including Pegwell Bay Nature Reserve, the Viking Coastal Trail, and the historic port town of Sandwich.
From the A257 Ash Bypass, take the exit for Guilton continue along Guilton for approximately 0.3 miles and take a right hand turn to Durlock Road. The entrance is on your right hand side just before School Lane. The development site is located to the rear of the residential properties. The nearest postcode is CT3 1JX.
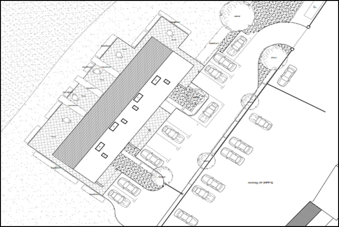
Description: The site comprises an area of approximately 0.31 acres (subject to survey). The land is generally level and benefits from a vehicular access from Durlock Road.
The Development as Consented Includes:
•4 no. two storey dwellings (in a terrace of 4)
•Dedicated Parking for Residents and Visitors
•Internal Access Roads and Landscaping
The layout has been designed to provide generous outside space for each of the units, with landscaping and screening to enhance privacy and visual amenity.
The grant of planning permission for the conversion of the barn was granted by Dover District Council (Ref: 21/00141). The three pre-commencement conditions have now been discharged. An information pack including the approved plans, Decision Notice, and other supporting documentation is available on request from the Agents e-mail m.chandler@finns.co.uk.
The following covenants apply, or will be applied to the sale:
1. The purchaser will be granted a right to lay utilities in the vendors retained land.
2. A restriction will be applied preventing the development of more than 4 residential properties.
3. The buyer will be obliged to erect a suitable boundary fence within 12 months of completion the specification of which to be decided between the parties.
The property is offered for sale by private treaty with a right reserved to take the property to auction, formal or informal tender at a later date.
Freehold with vacant possession on completion.
The property is sold to and with the benefit of all existing covenants, wayleaves and rights of way whether public or private specifically mentioned or not.
Mains electricity and water are available nearby. Drainage is to be provided via a private system (subject to design and approval). Interested parties should make their own enquiries regarding service connections.
The purchaser must satisfy themselves of the location of all the boundaries from their own inspection and from the Land Registry plans available. Areas are quoted for guidance purposes only and are given without responsibility which should not be relied upon as fact. The plan on the final page of this brochure is the indicative area for sale. More land is available to be purchased during the sale.
In accordance with Money Laundering Regulations we are now required to obtain proof of identification of funds prior to agreeing a sale.
Strictly by confirmed appointment with the Agent email m.chandler@finns.co.uk or 01304 612 147 (Option 3). If you are unsure of any of the details, please speak to Mark Chandler.
1. None of the statements in these particulars are to be relied upon as statements or representations of fact. Photographs are for guidance only and do not imply items shown are included in the sale – some aspects may have changed since they were taken. No person in the employment of Finn’s has authority to make or give any representation or warranty in relation to this property.
2. The Agent checked the legal documents to verify the freehold/leasehold status of the property. The buyer is advised to obtain verification from their Solicitor or Surveyor.
3. The particulars of this property were produced in August 2025
EPC
We don't currently have floor plans for this property, please contact us for more information.
Floorplans
We don't currently have floor plans for this property, please contact us for more information.
List of nearest schools to this property.
* Distances are straight line measurements.
Key Stage 2
Ash Cartwright and Kelsey Church of England Primary School - 1.26 miles
Key Stage 4
Beech Grove School - 2.7 miles
Key Stage 5
Sandwich Technology School - 3.39 miles
List of nearest public transport to this property.
* Distances are straight line measurements.
Train Station
Adisham Rail Station - 3.03 miles
Airport
Lydd London Ashford Airport - 25.65 miles
Coach Station
Canterbury: Park & Ride New Dover Rd Coach Stop - 6.72 miles
Ferry Port
Dover Eastern Docks Ferry Terminal - 10.1 miles
You will have to pay £XXX in stamp duty.
Please note the above figure will be different if you are purchasing this as an additional property.
@ Staple Farm, Staple
Please enter your details below and one of our team will get back to you as soon as possible