Full Property Description
An exceptional five-bedroom detached family home on Discovery Drive, Preston — offering over 2,000 sq ft of beautifully appointed living space, set within a modern development near Canterbury. Built within the last 10 years, this high-specification home boasts sleek contemporary styling, a sunny rear garden, and a spacious double garage, making it an ideal home for growing families.
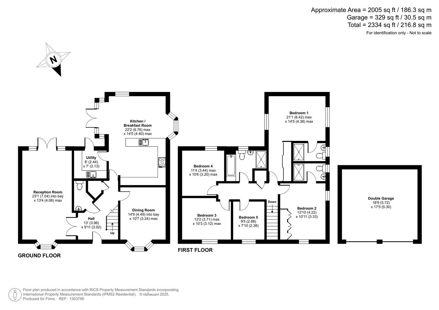
The ground floor offers an elegant and practical layout designed for modern living. The welcoming entrance hall leads to a generous reception room with a front-facing bay window and French doors opening onto the garden, filling the space with natural light. The heart of the home is the large open-plan kitchen/breakfast room, featuring modern shaker-style cabinetry, integrated appliances, a central island with breakfast bar seating, and a bright dual-aspect layout with garden views. A separate utility/laundry room adds convenience, and there’s also a well-sized formal dining room with another bay window, perfect for entertaining. A cloakroom/WC completes the ground floor.
Upstairs, the home offers five generous bedrooms, ideal for family life or remote working. The luxurious principal bedroom benefits from dual-aspect windows, a walk-in wardrobe, and a sleek en-suite shower room. Bedroom two also features its own en-suite, while the remaining bedrooms are served by a well-appointed family bathroom, offering stylish finishes and excellent proportions throughout.
Outside, the sunny rear garden provides an ideal space for outdoor dining, play or relaxation. To the front, the home benefits from a private driveway providing ample off-street parking, along with a spacious double garage.
Key Features
Situation
Discovery Drive sits within a well-regarded residential development in the village of Preston, just a short drive from Canterbury. The area offers a peaceful semi-rural lifestyle with easy access to a range of local amenities, excellent schools, and transport links. The historic towns of Canterbury and Sandwich are both within easy reach, offering shopping, dining, rail connections and cultural attractions.
Entrance Hall
WC
Cloak Room
Reception Room
Dining Room
Kitchen/ Breakfast Room
Utility Room
Landing
Bedroom 1
En-Suite Shower
Bedroom 2
En-Suite Shower
Bedroom 3
Bedroom 4
Family Bathroom
Bedroom 5/ Study
External
Double Garage